Los promotores del polígono industrial en Los Mármoles llevan al Juzgado su paralización

Las empresas promotoras del polígono industrial Muelle de Los Mármoles han interpuesto un recurso contencioso administrativo contra el Ayuntamiento de Arrecife, que ha paralizado su desarrollo amparándose en la suspensión de licencias que pueden afectar a bienes considerados de interés patrimonial.
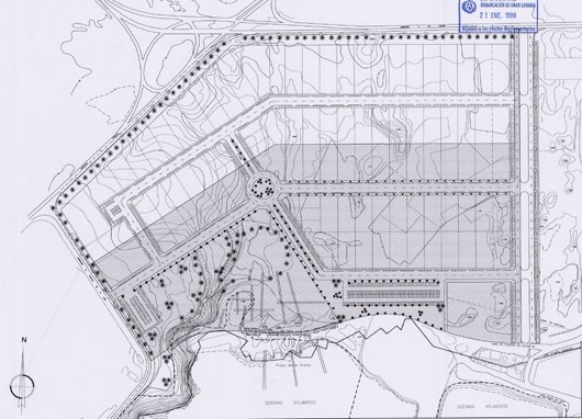
De este modo, las sociedades Espacio Industrial Bermúdez, Bermúdez y Cabrera, Fabrecar y Tamicar han recurrido un decreto de la Oficina Técnica del Ayuntamiento capitalino, dictado el pasado 14 de octubre, que desestima la iniciativa de las empresas "para la gestión y ejecución" del nuevo polígono industrial, de más de 255.000 metros cuadrados de superficie.
Esta nueva área industrial se ubica justo en la trasera del muelle de Los Mármoles y lleva años pendiente de tramitación. El Ayuntamiento argumentó que le era de aplicación la suspensión de licencias a todos los bienes incluidos al catálogo municipal de patrimonio.
Esa suspensión de licencias, por un periodo de seis meses, se acordó el pasado 7 de agosto, después de que el Tribunal Supremo anulase el catálogo arquitectónico municipal que entró en vigor en 2008.
Ahora, el Ayuntamiento de Arrecife ha vuelto a prorrogar otros cuatro meses más la concesión de licencias de derribo y construcción sobre bienes que se incluirán en el futuro catálogo de patrimonio que irá incorporado al Plan General, cuya aprobación inicial se prevé, según la última fecha anunciada por el Consistorio, para finales de abril.
Se da la circunstancia de que dentro de los terrenos del polígono industrial Muelle de Los Mármoles se encuentran unas antiguas salinas que la Corporación municipal quiere conservar y que ha incluido en el catálogo de patrimonio que está en fase de elaboración.
Las mismas empresas promotoras ya reclamaron al Ayuntamiento de Arrecife una indemnización de 10 millones de euros por no haber podido desarrollar el polígono tras la modificación del planeamiento que incorporó las salinas de Los Mármoles con una "protección integral". El Juzgado rechazó en primera instancia esa reclamación económica.
![]()
Al margen del PGOU
Los propietarios del suelo donde se emplazaría el polígono industrial de Los Mármoles reclaman que se incluya en el nuevo Plan General este plan parcial como suelo ordenado, pero desde el Ayuntamiento el grupo de gobierno sostiene la directriz de que no se va a ordenar suelo industrial en la revisión del planeamiento municipal.
Fuentes municipales señalan que el polígono se podrá desarrollar una vez que se apruebe el Plan General, aunque esto retrasaría su desarrollo. En una situación parecida se encuentran otras bolsas de suelo, principalmente de uso industrial, en la ciudad de Arrecife.












Comentarios
1 Asombrado Jue, 13/03/2014 - 11:36
2 Anonadado Jue, 13/03/2014 - 13:09
3 Asombrado 2 Jue, 13/03/2014 - 22:03
4 Insultante Jue, 13/03/2014 - 23:22
5 AL COMENTARIO 4 Vie, 14/03/2014 - 10:25
6 Amina Vie, 14/03/2014 - 21:43
7 Johnatan Dom, 16/03/2014 - 23:13
Añadir nuevo comentario